Casa indipendente in vendita

Lusigliè, Via Bassi
€ 339.000
5 locali 5 locali
270 Mq 270 Mq
3 bagni 3 bagni

Casa indipendente in vendita

Lusigliè, Via Bassi

Descrizione annuncio

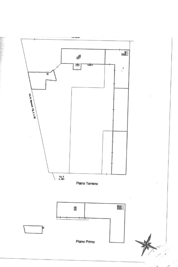
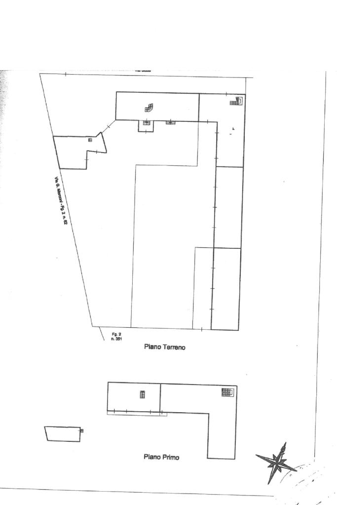
Nel tranquillo comune di Lusigliè, a pochi passi dai principali centri principali quali Rivarolo, proponiamo in vendita una casa indipendente di 270 mq ristrutturata nel 2015. Questa proprietà signorile si sviluppa al piano terreno con un'ampia cucina, salone doppio e bagno; offre ampi spazi suddivisi in cinque locali, ideali per chi cerca comfort e funzionalità. Al piano superiore l'immobile è dotato di tre ampie camere, di cui una con cabina armadio e due bagni. La casa è dotata di :

videosorveglianza esterna composta da 4 videocamere con accessibilità da remoto.

I MOTIVI PER SCEGLIERE QUESTO IMMOBILI

CASA GREEN IN CLASSE A4 CHE PERMETTE MUTUI AGEVOLATI

VICINANZA A FELETTO E RIVAROLO CON STAZIONE E CENTRI COMMERCIALI

VICINA ALL'ATUOSTRADA TO-AO

un sistema di allarme che garantisce sicurezza e tranquillità all'immobile. L' impianto fotovoltaico con 14 pannelli solari con produzione di 4,5kw ora , inverter, solare termico, condizionatori, termocamino , grate alle finestre.

Gli infissi sono in PVC taglio termico e vetri doppi. E' stato inoltre fatto il cappotto esterno che permette bassissimi costi di gestione ed un confort elevato.

Area relax esterna e zona barbeque.

Gl interni moderni e ben curati, si prestano a diverse soluzioni di arredo, mentre l'esterno offre spazi per il relax e il tempo libero grazie all'ampio giardino di circa 1.000 mq con tettoie per i mezzi. La posizione strategica consente di godere della quiete della zona, pur essendo a breve distanza dai principali servizi e collegamenti. Una soluzione abitativa che unisce eleganza e praticità, perfetta per chi desidera vivere in un contesto riservato senza rinunciare alle comodità moderne.

Mostra tutto

Nelle vicinanze

Trasporto pubblico Trasporto pubblico
Feletto
Feletto
2,6 Km
Lusigliè
Lusigliè
160 m
Lusiglie' (Bivio)
Lusiglie' (Bivio)
730 m
Scuole Scuole
Scuola Elementare Marconi
210 m
Scuola Elementare Gianni Rodari
2,4 Km
Scuola Statale Secondaria di Primo Grado Carlo Botta
2,6 Km
Scuola Elementare Statale Carlo Ignazio Giulio
2,8 Km
Farmacia Farmacia
Farmacia
140 m
Farmacia Antonini
2,1 Km
Farmacia Genovese
2,8 Km
Farmacia Calleri
3,0 Km
Supermercati Supermercati
Crai
2,3 Km
Lidl
2,4 Km
Europrezzi
2,4 Km
Natura madre
2,5 Km
TiGoTà
2,5 Km
Negozi Negozi
Larese
2,3 Km
Negozi
2,4 Km
Valentina
2,8 Km
Panificio Atzeni Gran Forno
2,8 Km
Gina Alimentari
2,8 Km
Bar Bar
Geco's Bar
220 m
Havana Bar
1,4 Km
Ristoranti Ristoranti
La Lucina
250 m
Ristorante Il Delfino
2,3 Km
La terrazza
2,3 Km
Locanda dei Templari
2,6 Km
Bar Ristorante Antica Osteria dei Tre Merli
2,6 Km
Mostra tutto

Caratteristiche

Rif.:
61123286
Piano:
1 di 1 (Piano basso)
Box:
3
Posti auto:
2
Balconi:
1
Camere da letto:
3
Mostra tutto
Prezzo Prezzo
€ 339.000
Rata mutuo Rata mutuo
€ 1.600 / mese
Spese annue Spese annue
€ 1.000
Proponi il tuo prezzoProponi il tuo prezzo

Classe Energetica

A4
A4
A4
A4
A4
A4
A4
A4
A4
EP globale non rinnovabile:
27.40 kW h/m² anno
EP globale rinnovabile:
27.40 kW h/m² anno
EP invernale del fabbricato:
EP estiva del fabbricato:
Anno di costruzione:
2015
Riscaldamento:
Autonomo
Tipo impianto:
A radiatori
Tipo alimentazione:
GPL

Ti interessa visionare l'immobile?

Fissa un appuntamento  Fissa un appuntamento

Richiedi informazioni

Clicca su Leggi per aprire l'informativa
* Questi campi sono obbligatori

Calcola il tuo mutuo

Semplice e senza impegno
Anticipo

( % )
Mutuo

( % )

pochi semplici passi

inserisci i tuoi dati
Questionario completato
Grazie per aver richiesto un appuntamento senza impegno con un nostro Consulente del Credito e Assicurativo.

Hai inserito correttamente tutti i dati necessari e a breve riceverai una e-mail con un link da convalidare per inviare i tuoi dati.
Affiliato
Studio San Giorgio Snc
Via Dante, 16 10090 San Giorgio Canavese (TO)

Il nostro staff


  • Massimo Salatino
    Affiliato
Via Dante, 16 10090 San Giorgio Canavese (TO)
Zona: San Giorgio-San Giusto-Feletto-Agliè-Ozegna-Foglizzo-Cuceglio-Montalenghe
Mostra su mappa
Orari: lun. al ven. 9:00 - 12:30 /15:00 - 20:00 sabato chiusura alle 19:00
Affiliato
Studio San Giorgio Snc
Via Dante, 16 10090 San Giorgio Canavese (TO)

2025 Tecnocasa Franchising S.p.A. - P. IVA 08365160152 - Via Monte Bianco 60/A 20089 Rozzano (MI). Ogni agenzia ha un proprio titolare ed è autonoma. Privacy policy | Policy utilizzo | Cookie policy