Casa indipendente in vendita

Ozegna, Cascina Reisera
€ 219.000
4 locali 4 locali
120 Mq 120 Mq
3 bagni 3 bagni

Casa indipendente in vendita

Ozegna, Cascina Reisera

Descrizione annuncio

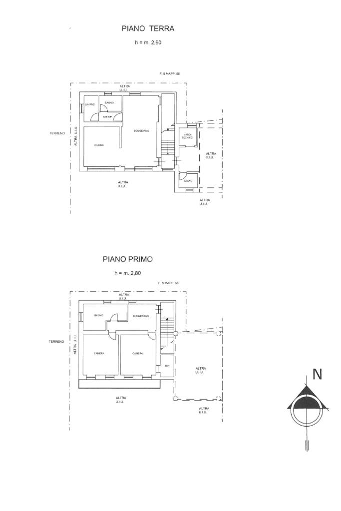
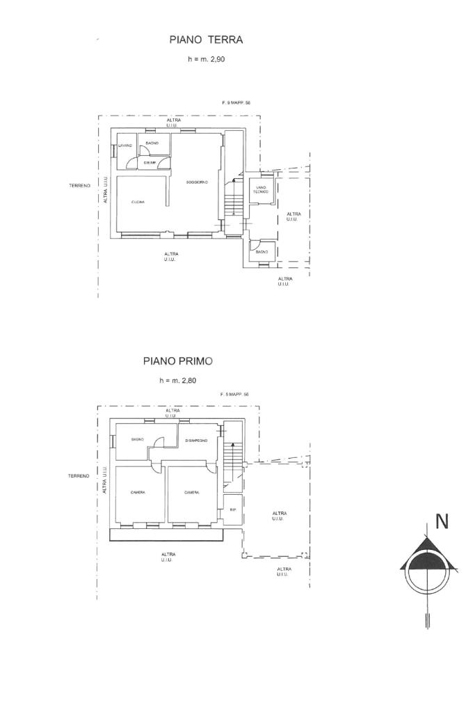
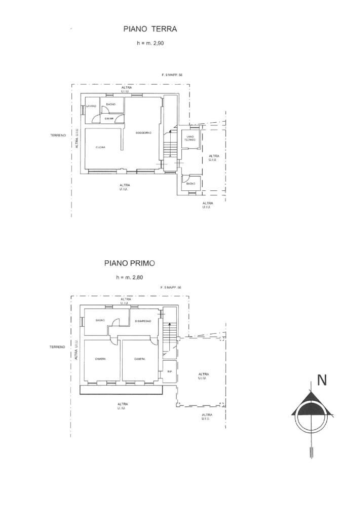
Nel tranquillo comune di Ozegna, proponiamo in vendita una casa indipendente di 120 mq, ideale per chi cerca un'abitazione accogliente e funzionale. La ristrutturazione totale è del 2010, questa proprietà offre un perfetto equilibrio tra il fascino del passato e le comodità moderne. Disposta su due livelli, la casa si sviluppa su quattro locali ben distribuiti, garantendo spazi ampi e luminosi. La disposizione interna è pensata per ottimizzare ogni ambiente, rendendola adatta a diverse esigenze abitative. La categoria dell'immobile assicura un contesto residenziale sereno, perfetto per chi desidera vivere lontano dal caos cittadino, ma con tutti i servizi essenziali a portata di mano. Un'opportunità unica per chi cerca una soluzione abitativa solida e ben curata nel cuore di Ozegna. Oltre all'abitazione principale vi è inoltre un locale uso tavernetta dove poter trascorrere serate in relax. Gli infissi sono in PVC con doppio vetro. Il riscaldamento è a pavimento garanendo un confort elevato. Lo spazio esterno è a completamento di questa soluzione.

Mostra tutto

Nelle vicinanze

Trasporto pubblico Trasporto pubblico
Aglie' (Cascina Malesina)
Aglie' (Cascina Malesina)
730 m
Ciconio (borg. De Laurentis)
Ciconio (borg. De Laurentis)
880 m
Ricariche auto elettriche Ricariche auto elettriche
Agliè Castello | EnelX
2,3 Km
AGLIÈ Campodoneo | ENELX
2,7 Km
Agliè Gula | EnelX
2,8 Km
Scuole Scuole
Scuola elementare Giacomo Mattè-Trucco
1,9 Km
Scuola Elementare Statale Carlo Ignazio Giulio
2,1 Km
Scuola Statale Secondaria di Primo Grado Carlo Botta
2,2 Km
Scuola Elementare Marconi
2,7 Km
Scuola Primaria Statale di Agliè
2,9 Km
Farmacia Farmacia
Farmacia
2,1 Km
Farmacia Genovese
2,2 Km
Farmacia Calleri
2,4 Km
Farmacia Ducale
2,7 Km
Supermercati Supermercati
Supermercato di Galetto
2,2 Km
Negozi Negozi
Dal cesto del grano
1,6 Km
I Segreti dell'intimo
1,7 Km
Camiceria Trè Re
1,8 Km
Qui c'è
2,2 Km
Panificio Atzeni Gran Forno
2,2 Km
Bar Bar
Havana Bar
1,6 Km
Palabar
2,0 Km
Caffetteria Pasticceria Gianni
2,2 Km
Antica società operaia
2,2 Km
Geco's Bar
2,6 Km
Ristoranti Ristoranti
Agriturismo Cascina La Desiderata
980 m
Monnalisa
1,9 Km
Bar Ristorante Antica Osteria dei Tre Merli
2,1 Km
castello di San Giorgio Canavese
2,2 Km
Bar Ristorante della Luna
2,2 Km
Mostra tutto

Caratteristiche

Rif.:
61136625
Piano:
1 di 1 (Piano basso)
Box:
1
Balconi:
1
Terrazzi:
1
Camere da letto:
2
Mostra tutto
Prezzo Prezzo
€ 219.000
Rata mutuo Rata mutuo
€ 1.039 / mese
Spese annue Spese annue
€ 0
Proponi il tuo prezzoProponi il tuo prezzo
Immobile valutato con T·Valuta

Classe Energetica

E
E
E
E
E
E
E
E
E
EP globale non rinnovabile:
165.56 kW h/m² anno
EP globale rinnovabile:
165.56 kW h/m² anno
EP invernale del fabbricato:
EP estiva del fabbricato:
Anno di costruzione:
1950
Riscaldamento:
Autonomo
Tipo impianto:
A pavimento
Tipo alimentazione:
Metano

Ti interessa visionare l'immobile?

Fissa un appuntamento  Fissa un appuntamento

Richiedi informazioni

Clicca su Leggi per aprire l'informativa
* Questi campi sono obbligatori

Calcola il tuo mutuo

Semplice e senza impegno
Anticipo

( % )
Mutuo

( % )

pochi semplici passi

inserisci i tuoi dati
Questionario completato
Grazie per aver richiesto un appuntamento senza impegno con un nostro Consulente del Credito e Assicurativo.

Hai inserito correttamente tutti i dati necessari e a breve riceverai una e-mail con un link da convalidare per inviare i tuoi dati.
Affiliato
Studio San Giorgio Snc
Via Dante, 16 10090 San Giorgio Canavese (TO)

Il nostro staff


  • Massimo Salatino
    Affiliato
Via Dante, 16 10090 San Giorgio Canavese (TO)
Zona: San Giorgio-San Giusto-Feletto-Agliè-Ozegna-Foglizzo-Cuceglio-Montalenghe
Mostra su mappa
Orari: lun. al ven. 9:00 - 12:30 /15:00 - 20:00 sabato chiusura alle 19:00
Affiliato
Studio San Giorgio Snc
Via Dante, 16 10090 San Giorgio Canavese (TO)

2026 Tecnocasa Franchising S.p.A. - P. IVA 08365160152 - Via Monte Bianco 60/A 20089 Rozzano (MI). Ogni agenzia ha un proprio titolare ed è autonoma. Privacy policy | Policy utilizzo | Cookie policy